Home Âŧ News Âŧ āļāļĢāļ°āļāļ§āļāđāļāļ§āļāļ§āļēāļĄāļāļīāļāđāļāļāļēāļĢāļāļāļāđāļāļāļāļĢāļąāļāļāļĢāļļāļāļāļēāļāļēāļĢāļāļēāļāļīāļāļĒāđāđāļŦāđāđāļāđāļāļāļīāļāļīāļāļ āļąāļāļāđāļāļēāļāļŠāļāļēāļāļąāļāļĒāļāļĢāļĢāļĄ
āļĢāļēāļĒāļĨāļ°āđāļāļĩāļĒāļāđāļāļĢāļāļāļēāļĢ
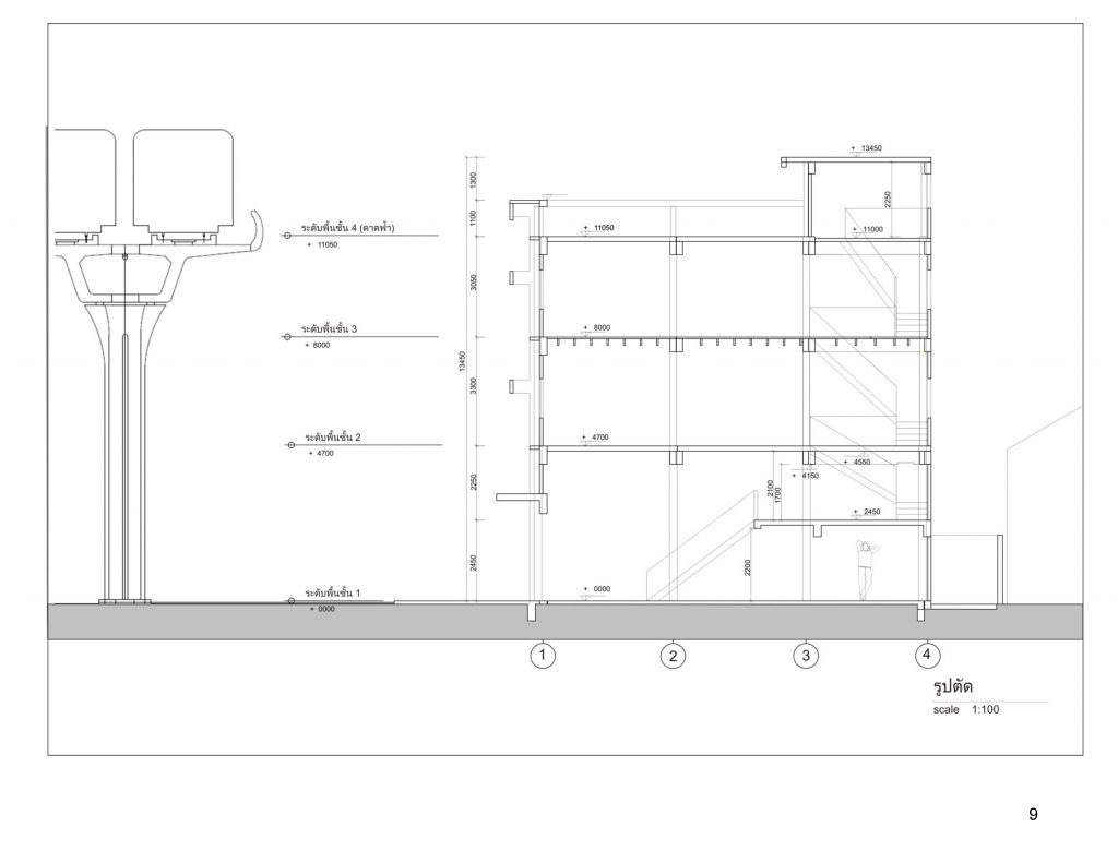
ASA CREW Existing Sections
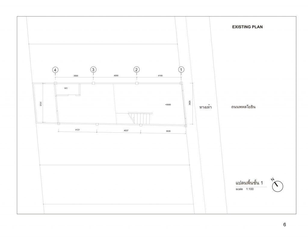
ASA CREW Existing Plan